Проф.брус 100х150 мм
Цена, сруб 1070 000 руб
Цена, под ключ 1990 000 руб
Проф.брус 150х150 мм
Цена, сруб 1235 000 руб
Цена, под ключ 2170 000 руб
Проф.брус 200х150 мм
Цена, сруб 1390 000 руб
Цена, под ключ 2390 000 руб
Проект полутораэтажного дома из бруса с мансардой в компании малоэтажные дома, общая площадь которого составляет 98 кв.м., – это эксплуатационный надежный проект дома из бруса, функциональность и изысканный дизайн.
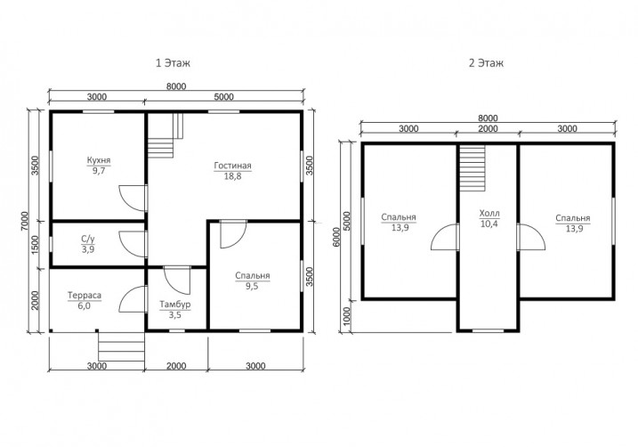
Проект дома из бруса 102 отличается удобной экспликацией помещений: удобная кухня, просторная светлая гостиная и комфортная спальня. Во всех жилых комнатах домов из бруса проектом предусмотрены зимние двойные окна и деревянные двери. На входе в дом стоит надежная металлическая дверь.
Законченный вид дому из бруса придает мансардная, надежно защищающая строение от снега и непогоды.
Экологическая чистота деревянного дома из бруса пиломатериала и свойство натурального дерева «дышать» - преимущества, обусловившие популярность домов из бруса. Двойные оконные рамы домов из бруса, монолитная структура бруса и дополнительный слой теплоизоляции сберегают тепло и формируют комфортные условия для круглогодичного проживания в городе Новосибирск.
Выбор местоположения
Мы свяжемся с Вами в течение дня.